
В этой статье постараемся немного объяснить, что такое твердотопливный котел и какие есть варианты его подключения.
Газ постоянно дорожает и вероятность того, что эта тенденция продлится, очень высока. Стоимость электричества кстати, тоже красиво подтягивается под газ в процентном соотношении...
Хочешь, не хочешь, но чтобы экономить на отоплении большого дома, придется устанавливать твердотопливный котел. Какой будет котел? Выбор за Вами! На сегодняшний день в Украине представлена очень богатая линейка твердотопливных котлов как импортного, так и отечественного производства!
Это моут быть как обычные угольные или дровяные с ручной загрузкой, так и автоматические пеллетные или с пиролизным горением. Компания Технолог представляет Вашему вниманию твердотопливные котлы, зарекомендовавшие себя как надежные и долговечные источники обогрева жилищ и производственных помещений!
Наша компания устанавливает твердотопливные котлы и выполняет сервисные работы по их обслуживанию.
Давайте разберемся, как правильно установить твердотопливный котел.
Многие обыватели заблуждаются по поводу установки твердотопливного котла думая, что установить твердотопливный котел может кто угодно. Увы - хочу немного разочаровать. Котел может и заработает после такой установки, но не так как нужно, да и срок его эксплуатации закончиться за один-два сезона. Не каждый “сантехник дядя Вася” знает как правильно подключить твердотопливный котел в систему отопления. Чтобы он проработал не один-два сезона и вышел из строя, а работал 20 сезонов и поистине был выгодным приобретением позволяющим в наше нелегкое время экономить не обманывая себя!
Кстати - любой котел, как и авто требует сервиса и ухода! За это, он отблагодарит Вас длительным сроком службы! При установке твердотопливных котлов присутствует своя специфика подключений гидравлических соединений. Монтаж нужно доверять только опытным людям, которые имеют опыт и понимание того, что нужно делать. Если не выполнить некоторые требования по подключению, котел может:
- плакать (покрываться конденсатом), что вызывает коррозию
- не выходить в нужный температурный режим горения, из-за чего будет залипать продуктами горения
- не работать на полную отдачу и как следствие – преждевременный выход из строя.
Да, еще хотелось бы сказать о том, что твердотопливные котлы не дешевое удовольствие. В некоторых случаях правильная гидравлическая обвязка котла стоит дороже чем сам котел. К этому нужно быть готовым, если вы все же надумали купить твердотопливный котел.
Также, немаловажно и правильное подключение котла к дымоходу. Он в свою очередь должен быть изголовлен из жаростойкой, кислотостойкой нержавеющей стали или из керамики! Дымоход нужно правильно подобрать по диаметру (обычно указывается в паспорте котла) и выдержать определенную высоту исходя из требования производителей котлов, технических условий и места расположения. Я думаю о дымоходах будет отдельная статья, в двух словах не обрисуешь всех мелочей и нюансов связаных с установкой дымохода для твердотопливного котла.
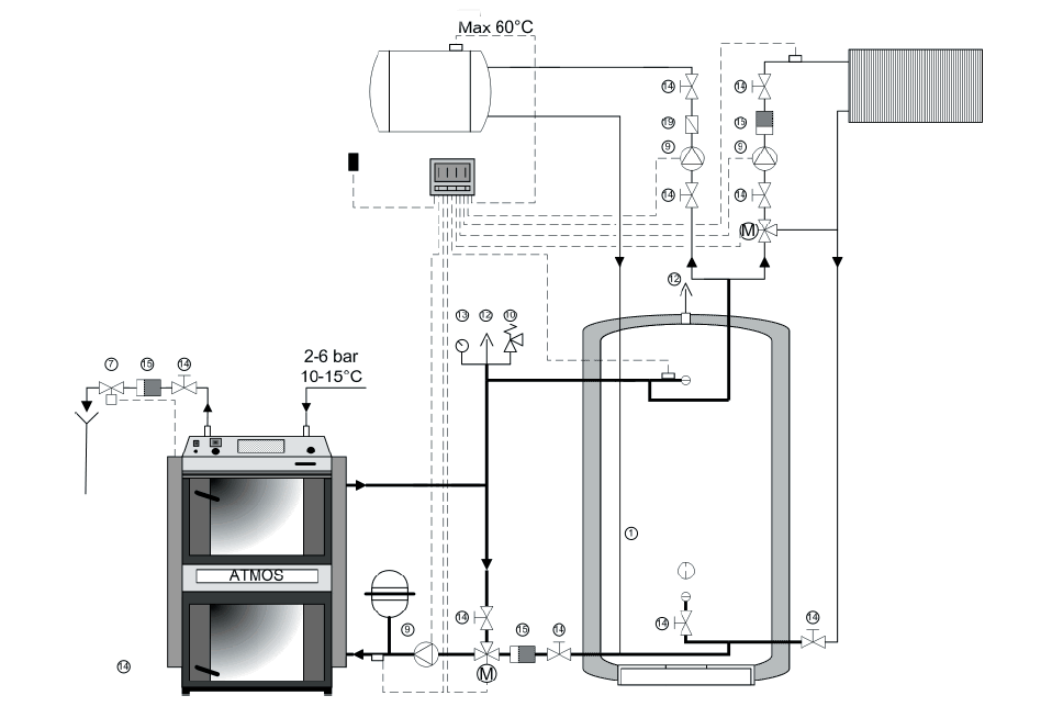
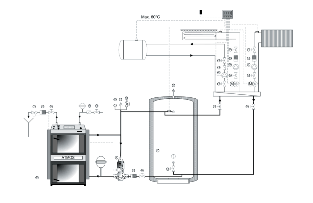
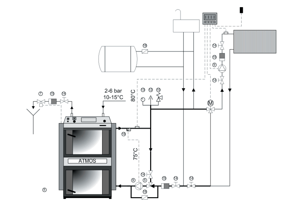
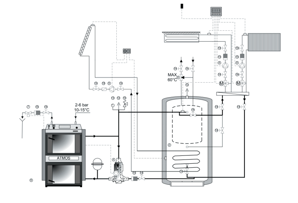
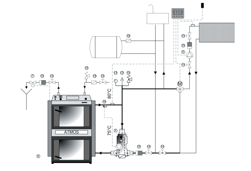
Ниже Вы можете посмотреть несколько популярных схем подключений твердотопливных котлов с использованием термосмесительного узла “LADDOMAT-21”, терморегулирующих вентилей, теплоаккумуляторов, трехходовых вентилей, управляемых электронным регулированием до требуемой температуры обратной линии системы отопления, электронного регулирования систем отопления и нагрева теплой воды для котлов мощностью до 100кВт.:
Схемы подключения твердотопливных котлов
|
|
|
|
|
|
|
|
|
|
|
|
|
|
|
Имеется еще множество схем подключения с использованием зональных вентилей и термостатов, возможностью подключать в систему несколько котлов с буферными емкостями и без них. В любом случае, необходимо знание и понимание схем, ну и опыт проведения монтажных работ никто не отменял!
Хотите получить качественную установку твердотопливного котла - звоните по телефонам указанным в контактах сайта, мы к Вашим услугам!
Самые распространенные схемы, которые мы удачно используем и в своей практике по установке твердотопливных котлов мы постарались Вам предоставить. Ну, а дальше все зависит от монтажной организации и качества необходимых элементов обвязки котлов.
Частично информация взята с официального сайта чешских изготовителей твердотопливных котлов Атмос.

